【信息发布时间:2018-09-19 21:06 阅读次数:】 【我要打印】 【关闭】
灌云县南京中路、市民广场路灯采购询价公告
编号:GYZFCG201809007
江苏中润工程建设咨询有限公司受连云港亘强实业有限公司委托对灌云县南京中路、市民广场路灯采购以询价方式进行采购,欢迎符合要求的供应商前来报名参加。
一、项目名称:灌云县南京中路、市民广场路灯采购
二、项目概况及规格要求:仿古灯61套、景观灯26套,具体要求和相关参数详见附件及询价单。
三、本次询价预算为:33万元,报价超过预算的为无效投标人。
四、资格要求:
1、符合《中华人民共和国政府采购法》第二十二条的规定;
2、具有合法的企业法人营业执照、组织机构代码证、基本户开户许可证、税务登记证(或三证合一)并提供复印件材料加盖公章(原件现场备查);
3、提供企业法人委托书(原件)、授权人身份证复印件加盖公章、被授权人身份证(原件及加盖公章的复印件);
4、投标单位要求为投标路灯的生产制造商,提供投标产品生产车间图片;
5、“CCC”强制性产品认证、安全生产许可证(原件);
6、参加政府采购经营活动中前三年内无重大违法记录书面声明;
7、本项目不接受联合体投标。
四、投标保证金的形式:电汇(不接收现金、汇票和支票)
投标保证金的金额:6000元
投标保证金接收人:灌云县公共资源交易服务中心
开户行:中国银行灌云支行营业部
账号:467671153096
保证金递交要求
(1)投标保证金必须在投标截止时间前到达灌云县公共资源交易服务中心帐户内,电汇底单与投标文件一起递交至开标现场,未按规定时间及要求递交的,作无效标处理。
(2)投标保证金必须从企业基本户中汇出,以个人、企业的办事处、分公司、子公司名义或从他人账户、投标人企业的其他账户缴纳的投标保证金无效。退还保证金应退至投标企业的法人基本存款账户。
(3)开标结束后凭电汇底单的复印件到财务科换取收据。
各投标单位如需查询保证金到帐情况,请与财务科联系,联系方式如下:
联系人: 朱亚娟
联系电话: 0518-88885209
投标文件一正一副,需密封加盖公章,如不密封,拒绝接收投标文件。
五、付款方式:货到验收合格安装调试完成正常使用付货款的90%,一年质保期满后付清余款。
六、交货期限:中标通知书发出后15天内送至指定地点并负责调试。
七、投标报价资料递交截止时间:2018年09月27日 10时 00分整。
八、报价资料递交地点及联系人:灌云县恒驰大厦九楼多功能室。
九、中标单位须交纳1050元综合服务费
十、本项目招标代理费按国家计委计价格[2002]1980文规定收取,由中标单位支付。
未尽事宜或需澄清的内容请联系采购人。
十一、各投标人在投标截止时间前,应连续登陆连云港政府采购网查看采购信息,如有采购信息的更正或修改,而因投标人未能连续登陆网站查看,其责任由投标人自行承担。
采购单位联系人:杨主任 联系电话: 0518-88112030
招标代理公司:王工 联系电话:0518-85450099
询价人(盖章): 2018年 09 月19日
附件1:
灌云县 采购项目
询价投标文件
投标人(盖章):
法定代表人或委托代理人(签字或盖章):
日 期: 年 月 日
附件2 : 授权委托书
本授权委托书声明:我 (姓名)系 (投标人名称)的法定代表人,现授权委托 (单位名称) (姓名)为我单位的合法代理人,以本公司的名义参加 (招标人名称)的 投标。代理人所签署的一切文件和处理与之有关的一切事务,我均予承认。
委托期限:
代理人无转委权,特此委托。
投标人(盖法人章):
法定代表人(签字):
身份证号码:
委托代理人(签字):
身份证号码:
授权日期: 年 月 日
附件3:报价书格式
报 价 书
致: 灌云县****** (询价人名称)
1.根据已收到项目的询价文件,我单位经考察现场并研究上述项目询价文件,我方报总价如下:
2.我单位承诺响应询价文件的所有条款。
3.我单位保证在收到贵单位发出的书面通知后立即供货,并在 天内供完。
4.如果我单位中标,贵方的中标通知书和本报价书将构成约束我们双方的合同的组成部分。
5.报价人认为其它需承诺的内容:
附件4:
报价明细表
致: (询价人名称)
1. 根据已收到项目的询价文件,我单位经考察现场并研究上述项目询价文件,我方报总价如下:
|
序号 |
品名 |
单位 |
数量 |
单价(元) |
小计(元) |
技术参数 |
|
1 |
|
|
|
|
|
|
|
2 |
|
|
|
|
|
|
|
|
合计(元) |
(¥: ) |
||||
附件5:
无重大违法违纪承诺
致: 灌云县******* (询价人名称)
我单位承诺贵单位采购活动前3年内在经营活动中没有重大违法记录,愿意接受上级监管部门和各级领导审查、监督、如有不符,愿接受任何处罚。
报价人:(单位全称)
法人代表或授权代理人:(签章)
日期:年月日
附件6:
无行贿犯罪记录承诺
附件7:
本询价采用资格后审,资格审查所需资料如下:
企业营业执照 或三证合一(原件);
组织机构代码 或三证合一(原件);
税务登记证 或三证合一(原件);
企业基本户开户许可证(原件);
提供投标产品生产车间图片;
保证金电汇底单 ;
“CCC”强制性产品认证、安全生产许可证(原件);
参加政府采购经营活动中前三年内无重大违法记录书面声明(原件)
企业、法定代表人无行贿犯罪承诺(原件)
以上资料原件带至开标现场复印件加盖公章装订在标书中,如未提供视为资格审查不合格。
附件8:
询价清单及采购物品的详细要求和说明
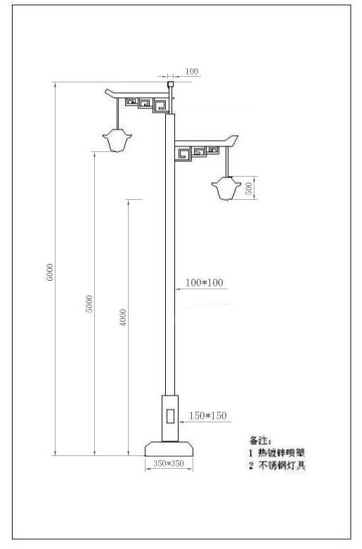
六米仿古灯配置及相关技术参数:
灯杆主体:采用Q235钢制100mm*100mm方管制作,主杆底部一米为150mm*150mm方管,壁厚均为3.5mm, 底部装饰座上部口径为155mm*155mm,下部口径为350mm*350mm,高度200mm,采用壁厚2.0mmQ235钢板,激光切割,折弯后经气体保护焊接成型,表面打磨处理,灯杆及底座整体热浸镀锌,喷涂抗盐耐腐户外用塑粉。
法兰 : 边距280mm*280mm*厚16mm,Q235钢板,
灯臂 : 横臂采用Q235钢制80mm*40mm方管制作,回文用20mm*20mmQ235方管制作,立体感强,整体热浸镀锌。
灯具 :高度500mm,宽度500mm,标称2.0mm,304不锈钢制作,不锈钢板冲压成型,气体保护焊接成型,表面打磨处理,喷涂抗盐耐腐户外用塑粉,灯罩采用钢化磨砂透光玻璃。
光源 :主干道灯笼底部80WLED,照明角度12/15度,人行道灯笼底部60WLED,照明角度同上,内置品牌电源(明纬、飞利浦、茂硕三选一)
灯珠为普锐45,灯笼内置9W品牌LED球泡(欧斯朗、科瑞、普瑞三选一)
含两次运费(一次送地笼),地笼280mm*280mm*750mm*M16,增值税票,协助安装,电线2*1.5护套线,所有外露紧固件均为不锈钢件。

四米景观灯配置及技术参数:
灯杆主体:高度4米,底部为410mm*410mm*1000mm,中部为310mm*310mm*2400mm,采用优质2.5mm304不锈钢制作,气体保护焊接成型,表面经打磨处理后喷涂抗盐耐腐,防紫外线户外用塑粉,
光源 :采用新光源LED,节能环保,光效好,维护成本低。
顶部回文处4*30WLED小型投光灯,灯体中部8*19WLED灯管,
4*30WLED采用普锐45灯珠(欧斯朗、科瑞、普瑞三选一),明纬电源(明纬、飞利浦、茂硕三选一)
顶部和灯体的四个侧面为3mm白色PE板,PE板灯体回文采用不锈钢激光切割制作,与灯体焊接牢固,外露紧固件均为不锈钢制作,
电线:2*1.5护套线
地笼:中心距,640mm*640mm*850mm*M20
法兰:550mm*550mm*16mm
顶部:(宽)800mm*(长)800mm*(高)600mm
含两次运费(地笼一次),地笼,增值税票,协助安装,

附件9:
一、评标办法:
1、据符合采购需求、质量和服务相等且报价最低的原则确定成交供应商。
2、提供相同品牌产品的不同投标人参加同一合同项下投标的,以其中通过资格审查、符合性审查且报价最低的参加评标;报价相同的,由采购人或者采购人委托评标委员会按照招标文件规定的方式确定一个参加评标的投标人,招标文件未规定的采取随机抽取方式确定,其他投标无效。
3、如出现最低报价相同且均实质性响应询价文件,将组织最低报价的投标人进行第二次报价。第二次报价必须低于第一次报价,并依此类推。
4、询价小组从质量和服务均能满足采购文件实质性响应要求的供应商中,按照报价由低到高的顺序提出3名成交候选人。
5、询价小组在对响应文件的有效性、完整性和响应程度进行审查时,可以要求供应商对响应文件中含义不明确、同类问题表述不一致或者有明显文字和计算错误的内容等作出必要的澄清、说明或者更正。供应商的澄清、说明或者更正不得超出响应文件的范围或者改变响应文件的实质性内容。
询价小组要求供应商澄清、说明或者更正响应文件应当以书面形式作出。供应商的澄清、说明或者更正应当由法定代表人或其授权代表签字或者加盖公章。由授权代表签字的,应当附法定代表人授权书。供应商为自然人的,应当由本人签字并附身份证明。
二、无效响应文件的确认
供应商有下列情况之一者,其响应文件无效:
1、未按照招标文件的规定提交投标保证金的;
2、响应文件未按规定的期限、地点送达的;
3、投标文件未按招标文件要求签署、盖章的;
4、不具备招标文件中规定的资格要求的;
5、报价超过招标文件中规定的预算金额或者最高限价的;
6、投标文件含有采购人不能接受的附加条件的;
7、法律、法规和招标文件规定的其他无效情形。
三、签订、履行合同:
采购人与成交供应商应当在成交通知书发出之日起30日内,按照采购文件确定的合同文本以及采购标的、规格型号、采购金额、采购数量、技术和服务要求等事项签订政府采购合同,在签订合同之前,成交供应商须向采购人缴纳中标金额的10%的履约保证金。合同期满后采购人无条件退还。
采购人不得向成交供应商提出超出采购文件以外的任何要求作为签订合同的条件,不得与成交供应商订立背离采购文件确定的合同文本以及采购标的、规格型号、采购金额、采购数量、技术和服务要求等实质性内容的协议。
成交供应商拒绝签订政府采购合同的,采购人可以按照成交候选人的顺序确定其他供应商作为成交供应商并签订政府采购合同,也可以重新开展采购活动。拒绝签订政府采购合同的成交供应商不得参加对该项目重新开展的采购活动。
四、保证金的退还
采购人或者采购代理机构应当在采购活动结束后及时退还供应商的保证金,但因供应商自身原因导致无法及时退还的除外。未成交供应商的保证金应当在成交通知书发出后5个工作日内退还,成交供应商的保证金应当在采购合同签订后5个工作日内退还。
有下列情形之一的,保证金不予退还:
(一)供应商在提交响应文件截止时间后撤回响应文件的;
(二)供应商在响应文件中提供虚假材料的;
(三)除因不可抗力外,成交供应商不与采购人签订合同的;
(四)供应商与采购人、其他供应商或者采购代理机构恶意串通的;
(五)采购文件规定的其他情形。
五、异议及质疑
(一)投标人对询价文件有异议的,应当在投标截止时间前1日前以书面形式向采购人、采购代理机构提出。逾期将不再接收。
(二)投标人对开标有异议的,应当在开标现场提出,招标人应当当场作出答复。
(三)投标人或者其他利害关系人对招标的项目的评标结果有异议的,应当在中标候选人公示期间提出。逾期将不再接收。
六、重新招标情形
出现下列情形之一的,采购人或者采购代理机构应当终止询价采购活动,发布项目终止公告并说明原因,重新开展采购活动。
(一)因情况变化,不再符合规定的询价采购方式适用情形的;
(二)出现影响采购公正的违法、违规行为的;
(三)在采购过程中符合竞争要求的供应商或者报价未超过采购预算的供应商不足3家。